---
title: "Afd. 017 Slagelsegade, Herning"
description: "0-17"
date: "2025-09-16"
created: "2025-01-08"
---

-
-

https://maps.google.dk/?q=56.1396882,8.987611

# Slagelsegade, Herning

Afdeling 17

## Bliv skrevet op til denne afdeling

Er du interesseret i en bolig i denne afdeling, kan du nemt skrive dig op via lejehuset.dk. Klik på knappen for at blive skrevet op allerede i dag.

[Skriv mig op](https://www.lejehuset.dk/)

## Velkommen til afdeling 17 Slagelsegade, Herning

Rækkehuse med egen have beliggende i roligt kvarter tæt på Herning Centret samt gode indkøbsmuligheder. Rækkehusene er i 2 etager med kælder og egen have. I gåafstand finder du alt, hvad hjertet kan begære af kulturelle aktiviteter til folk i alle aldre, restauranter/caféer, fitnesscentre, biograf, daginstitutioner og skoler.

## Faciliteter

Rækkehusene er opført i 1940 og udstyret med komfur, vaskemaskine og trægulve. Alle rækkehusene har egen have.

## Fakta for afdelingen

Altan/terrasse

Ja

Husdyr

Ja

Husdyr er tilladt i.h.t. reglement - Se hvilke husdyr der er tilladt i husordenen under Afdelingsdokumenter.

Ladestander

Nej

## Boligtyper i afdelingen

Lejligheder

4 værelses

Lejligheder

Lejligheder

5 værelses

Lejligheder

Boligtype

Værelser

Størrelse

Husleje

Indskud/dp

Plantegning

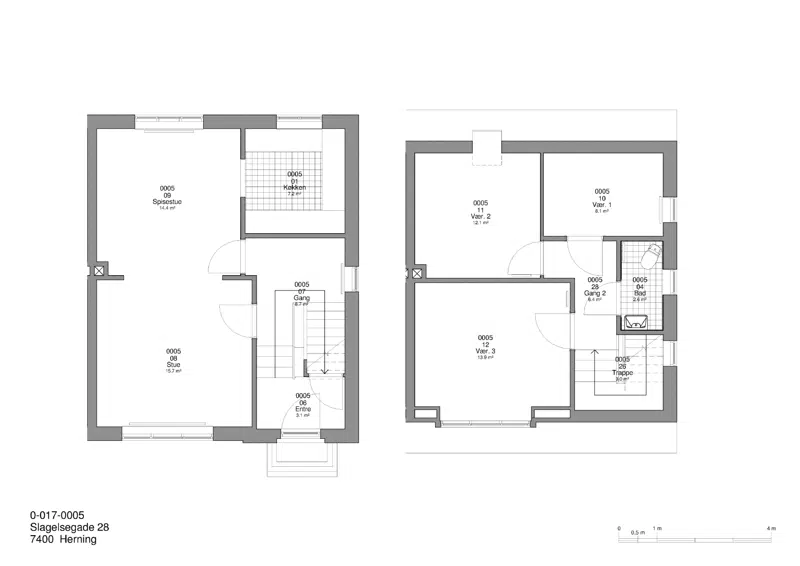
Lejligheder

4

113 m²

6091 kr.

12000 kr.

![](https://faellesbo.dk/i/MOLIRIMEDIA/ee083efc-2055-4aca-407f-08dcfd846119?width=800)

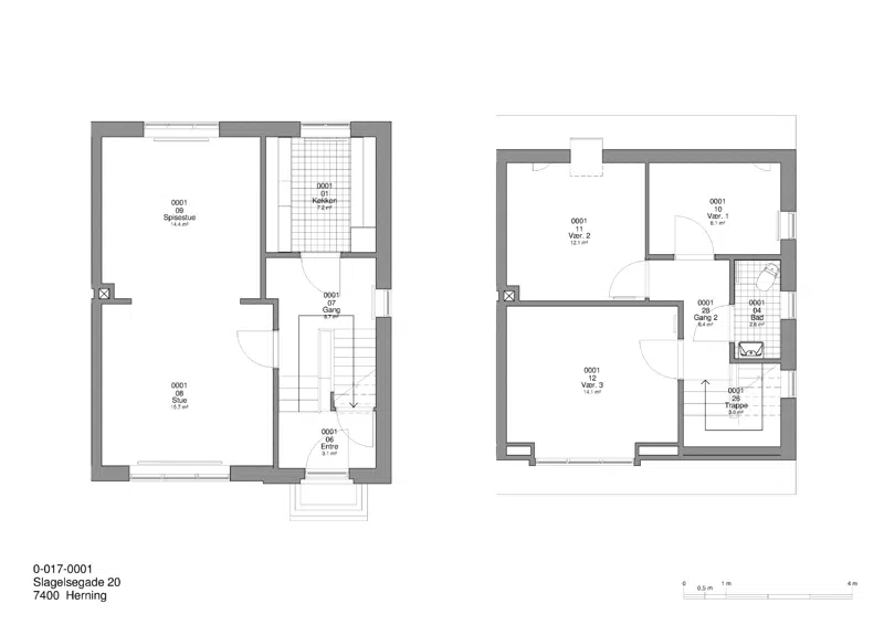
Lejligheder

5

113 m²

6091 kr.

12000 kr.

![](https://faellesbo.dk/i/MOLIRIMEDIA/af2edf13-867a-42da-3c1e-08dcfd846119?width=800)

## Afdelingens afstande til

Indkøbsmuligheder

meter

Park & natur

meter

Træning

meter

Togstation

meter

Bus

meter

Skole/uddanelse

meter

Institution

meter

## Afdelingsdokumenter

Her finder du nyttig information om din afdeling, såsom husorden, vedligeholdelse af dit lejemål, referater m.m.

###

                                                Afdelingsmøde

[Afdelingsmøde 2025.pdf](https://faellesbo.dk/p/Files/Filer/Boligdata/AfdelingsFiler/017/Dagsorden_og_referater/Afdelingsm&#xF8;de/Afdelingsm&#xF8;de-2025.pdf)
                                            [Afdelingsmøde 2024.pdf](https://faellesbo.dk/p/Files/Filer/Boligdata/AfdelingsFiler/017/Dagsorden_og_referater/Afdelingsm&#xF8;de/Afdelingsm&#xF8;de-2024.pdf)
                                            [Afdelingsmøde 2023.pdf](https://faellesbo.dk/p/Files/Filer/Boligdata/AfdelingsFiler/017/Dagsorden_og_referater/Afdelingsm&#xF8;de/Afdelingsm&#xF8;de-2023.pdf)
                                            [Afdelingsmøde 2022.pdf](https://faellesbo.dk/p/Files/Filer/Boligdata/AfdelingsFiler/017/Dagsorden_og_referater/Afdelingsm&#xF8;de/Afdelingsm&#xF8;de-2022.pdf)

###

                                                Husorden

[Ordensregler Vedtaget 2022.09.22.pdf](https://faellesbo.dk/p/Files/Filer/Boligdata/AfdelingsFiler/017/Beboerinformation/Husorden/Ordensregler-Vedtaget-2022.09.22.pdf)

###

                                                Informationsskrivelse

[Oversigtskort Afd 017 Slagelsegde.pdf](https://faellesbo.dk/p/Files/Filer/Boligdata/AfdelingsFiler/017/Beboerinformation/Informationsskrivelse/Oversigtskort-Afd-017-Slagelsegde.pdf)

###

                                                Råderet

[Råderetskatalog 2023.08.22.pdf](https://faellesbo.dk/p/Files/Filer/Boligdata/AfdelingsFiler/017/Beboerinformation/R&#xE5;deret/R&#xE5;deretskatalog-2023.08.22.pdf)

###

                                                Vedligeholdelse

[Vedligeholdelsesreglement.pdf](https://faellesbo.dk/p/Files/Filer/Boligdata/AfdelingsFiler/017/Beboerinformation/Vedligeholdelse/Vedligeholdelsesreglement.pdf)

###

                                                Energimærkning

[Energimærkning afd. 017.pdf](https://faellesbo.dk/p/Files/Filer/Boligdata/AfdelingsFiler/017/Beboerinformation/Energim&#xE6;rkning/Energim&#xE6;rkning-afd.-017.pdf)

###

                                                Almen Styringsdialog

[Almen styringsdialog for afdelingen 2025.pdf](https://faellesbo.dk/p/Files/Filer/Boligdata/AfdelingsFiler/017/Beboerinformation/Almen%20Styringsdialog/Almen-styringsdialog-for-afdelingen-2025.pdf)
                                            [Almen styringsdialog for afdelingen 2024.pdf](https://faellesbo.dk/p/Files/Filer/Boligdata/AfdelingsFiler/017/Beboerinformation/Almen%20Styringsdialog/Almen-styringsdialog-for-afdelingen-2024.pdf)

###

                                                Vedtægter

[FællesBo vedtægter godkendt den 2 juni 2022.pdf](https://faellesbo.dk/p/Files/Filer/Boligdata/Organisation/00/Vedt&#xE6;gter/F&#xE6;llesBo-vedt&#xE6;gter-godkendt-den-2-juni-2022.pdf)

###

                                                Økonomi

[Regnskab-2024.pdf](https://faellesbo.dk/p/Files/Filer/Boligdata/AfdelingsFiler/017/&#xD8;konomi/Regnskab-2024.pdf)
                                            [Regnskab 2023.pdf](https://faellesbo.dk/p/Files/Filer/Boligdata/AfdelingsFiler/017/&#xD8;konomi/Regnskab-2023.pdf)
                                            [Regnskab 2022.pdf](https://faellesbo.dk/p/Files/Filer/Boligdata/AfdelingsFiler/017/&#xD8;konomi/Regnskab-2022.pdf)
                                            [Budget 2026.pdf](https://faellesbo.dk/p/Files/Filer/Boligdata/AfdelingsFiler/017/&#xD8;konomi/Budget-2026.pdf)
                                            [Budget 2025.pdf](https://faellesbo.dk/p/Files/Filer/Boligdata/AfdelingsFiler/017/&#xD8;konomi/Budget-2025.pdf)
                                            [Budget 2024.pdf](https://faellesbo.dk/p/Files/Filer/Boligdata/AfdelingsFiler/017/&#xD8;konomi/Budget-2024.pdf)

## Placering

## Afdelingsbestyrelsesmedlemmer

Navn

Titel

Gitte Loni Andersen

Formand

Allan Birkholm

Bestyrelsesmedlem

Klaus Gejl

Bestyrelsesmedlem

Louise Frølund Kristensen Gejl

Suppleant
