---
title: "Afd. 271 Lyng- og Egeskrænten mf., Haderup"
description: "0-271"
date: "2025-09-16"
created: "2025-01-08"
---

-
-
-
-

https://maps.google.dk/?q=56.3879788,9.001812

# Lyng- og Egeskrænten mf., Haderup

Afdeling 271

## Bliv skrevet op til denne afdeling

Er du interesseret i en bolig i denne afdeling, kan du nemt skrive dig op via lejehuset.dk. Klik på knappen for at blive skrevet op allerede i dag.

[Skriv mig op](https://www.lejehuset.dk)

## Velkommen til afdeling 271 Lyng- og Egeskrænten mf., Haderup

Dejlige rækkehuse med egen have beliggende centralt i Haderup. Rækkehusene er fordelt på 3 forskellige adresser i Haderup, og har alle egen have/terrasse. Haderup er beliggende i et naturskønt område, nær Karup Å med gode muligheder for lystfiskeri. Der er et godt socialt miljø og kort afstand til indkøb, sportshal, skole samt daginstitution. Der er mange aktiviteter for ældre og gode offentlige transportmuligheder.

## Faciliteter

Boligerne er opført i 1981-1998 og udstyret med komfur, emhætte, køle-/fryseskab og skabe i værelserne.  Der er mulighed for at installere egen vaskemaskine. Hvert rækkehus har endvidere et redskabsrum til rådighed. Nogle af rækkehusene er tilsluttet fællesantenne, andre har egen antenne.

## Fakta for afdelingen

Altan/terrasse

Ja

Husdyr

Ja

Husdyr er tilladt i.h.t. reglement - Se hvilke husdyr der er tilladt i husordenen under Afdelingsdokumenter.

Ladestander

Nej

## Boligtyper i afdelingen

Lejligheder

1 værelses

Lejligheder

Lejligheder

2 værelses

Lejligheder

Lejligheder

3 værelses

Lejligheder

Boligtype

Værelser

Størrelse

Husleje

Indskud/dp

Plantegning

Lejligheder

1

39 m²

2770 kr.

5500 kr.

![](https://faellesbo.dk/i/MOLIRIMEDIA/2fc98ceb-82b6-4d3b-3974-08dcfd846119?width=800)

Lejligheder

2

65 m²

4963 kr.

11200 kr.

![](https://faellesbo.dk/i/MOLIRIMEDIA/1c5526c3-decf-4a07-3ef8-08dcfd846119?width=800)

Lejligheder

2

70 m²

4550 kr.

11095 kr.

![](https://faellesbo.dk/i/MOLIRIMEDIA/a3bcba00-6209-4972-3e58-08dcfd846119?width=800)

Lejligheder

2

64 m²

4959 kr.

8120 kr.

![](https://faellesbo.dk/i/MOLIRIMEDIA/22c63a3a-05f0-499b-3ac3-08dcfd846119?width=800)

Lejligheder

3

85 m²

6458 kr.

14680 kr.

![](https://faellesbo.dk/i/MOLIRIMEDIA/380701bf-efb2-4935-380f-08dcfd846119?width=800)

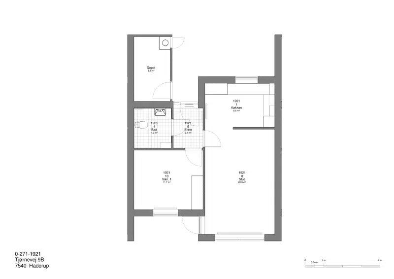
Lejligheder

3

80 m²

5405 kr.

13242 kr.

![](https://faellesbo.dk/i/MOLIRIMEDIA/09f9e816-3ecd-4353-4002-08dcfd846119?width=800)

Lejligheder

3

83 m²

5868 kr.

12000 kr.

![](https://faellesbo.dk/i/MOLIRIMEDIA/93980e2b-21db-461c-420c-08dcfd846119?width=800)

## Afdelingens afstande til

Indkøbsmuligheder

meter

Park & natur

meter

Træning

meter

Togstation

meter

Bus

meter

Skole/uddanelse

meter

Institution

meter

## Afdelingsdokumenter

Her finder du nyttig information om din afdeling, såsom husorden, vedligeholdelse af dit lejemål, referater m.m.

###

                                                Afdelingsbestyrelsesmøde

[2025-07-15-Referat-afdelingsbestyrelsesmøde.pdf](https://faellesbo.dk/p/Files/Filer/Boligdata/AfdelingsFiler/271/Dagsorden_og_referater/Afdelingsbestyrelsesm&#xF8;de/2025-07-15-Referat-afdelingsbestyrelsesm&#xF8;de.pdf)
                                            [2025 04 25 Referat afdelingsbestyrelsesmøde.pdf](https://faellesbo.dk/p/Files/Filer/Boligdata/AfdelingsFiler/271/Dagsorden_og_referater/Afdelingsbestyrelsesm&#xF8;de/2025-04-25-Referat-afdelingsbestyrelsesm&#xF8;de.pdf)
                                            [2025 01 20 Referat afdelingsbestyrelsesmøde.pdf](https://faellesbo.dk/p/Files/Filer/Boligdata/AfdelingsFiler/271/Dagsorden_og_referater/Afdelingsbestyrelsesm&#xF8;de/2025-01-20-Referat-afdelingsbestyrelsesm&#xF8;de.pdf)
                                            [2024 12 13 Referat afdelingsbestyrelsesmøde.pdf](https://faellesbo.dk/p/Files/Filer/Boligdata/AfdelingsFiler/271/Dagsorden_og_referater/Afdelingsbestyrelsesm&#xF8;de/2024-12-13-Referat-afdelingsbestyrelsesm&#xF8;de.pdf)
                                            [2024 09 09 Referat afdelingsbestyrelsesmøde.pdf](https://faellesbo.dk/p/Files/Filer/Boligdata/AfdelingsFiler/271/Dagsorden_og_referater/Afdelingsbestyrelsesm&#xF8;de/2024-09-09-Referat-afdelingsbestyrelsesm&#xF8;de.pdf)
                                            [2024 08 13 Referat afdelingsbestyrelsesmøde.pdf](https://faellesbo.dk/p/Files/Filer/Boligdata/AfdelingsFiler/271/Dagsorden_og_referater/Afdelingsbestyrelsesm&#xF8;de/2024-08-13-Referat-afdelingsbestyrelsesm&#xF8;de.pdf)
                                            [2024 05 31 Referat afdelingsbestyrelsesmøde.pdf](https://faellesbo.dk/p/Files/Filer/Boligdata/AfdelingsFiler/271/Dagsorden_og_referater/Afdelingsbestyrelsesm&#xF8;de/2024-05-31-Referat-afdelingsbestyrelsesm&#xF8;de.pdf)
                                            [2024 02 23 Referat afdelingsbestyrelsesmøde.pdf](https://faellesbo.dk/p/Files/Filer/Boligdata/AfdelingsFiler/271/Dagsorden_og_referater/Afdelingsbestyrelsesm&#xF8;de/2024-02-23-Referat-afdelingsbestyrelsesm&#xF8;de.pdf)
                                            [2023 11 03 Referat afdelingsbestyrelsesmøde.pdf](https://faellesbo.dk/p/Files/Filer/Boligdata/AfdelingsFiler/271/Dagsorden_og_referater/Afdelingsbestyrelsesm&#xF8;de/2023-11-03-Referat-afdelingsbestyrelsesm&#xF8;de.pdf)
                                            [2023 08 04 Referat afdelingsbestyrelsesmøde.pdf](https://faellesbo.dk/p/Files/Filer/Boligdata/AfdelingsFiler/271/Dagsorden_og_referater/Afdelingsbestyrelsesm&#xF8;de/2023-08-04-Referat-afdelingsbestyrelsesm&#xF8;de.pdf)
                                            [2023 04 11 Referat afdelingsbestyrelsesmøde.pdf](https://faellesbo.dk/p/Files/Filer/Boligdata/AfdelingsFiler/271/Dagsorden_og_referater/Afdelingsbestyrelsesm&#xF8;de/2023-04-11-Referat-afdelingsbestyrelsesm&#xF8;de.pdf)
                                            [2023 02 24 Referat afdelingsbestyrelsesmøde.pdf](https://faellesbo.dk/p/Files/Filer/Boligdata/AfdelingsFiler/271/Dagsorden_og_referater/Afdelingsbestyrelsesm&#xF8;de/2023-02-24-Referat-afdelingsbestyrelsesm&#xF8;de.pdf)

###

                                                Afdelingsmøde

[Afdelingsmøde 2025.pdf](https://faellesbo.dk/p/Files/Filer/Boligdata/AfdelingsFiler/271/Dagsorden_og_referater/Afdelingsm&#xF8;de/Afdelingsm&#xF8;de-2025.pdf)
                                            [Afdelingsmøde 2024.pdf](https://faellesbo.dk/p/Files/Filer/Boligdata/AfdelingsFiler/271/Dagsorden_og_referater/Afdelingsm&#xF8;de/Afdelingsm&#xF8;de-2024.pdf)
                                            [Afdelingsmøde 2023.pdf](https://faellesbo.dk/p/Files/Filer/Boligdata/AfdelingsFiler/271/Dagsorden_og_referater/Afdelingsm&#xF8;de/Afdelingsm&#xF8;de-2023.pdf)
                                            [Afdelingsmøde 2022.pdf](https://faellesbo.dk/p/Files/Filer/Boligdata/AfdelingsFiler/271/Dagsorden_og_referater/Afdelingsm&#xF8;de/Afdelingsm&#xF8;de-2022.pdf)
                                            [2025 03 18 Referat ekstraordinært afdelingsmøde.pdf](https://faellesbo.dk/p/Files/Filer/Boligdata/AfdelingsFiler/271/Dagsorden_og_referater/Afdelingsm&#xF8;de/2025-03-18-Referat-ekstraordin&#xE6;rt-afdelingsm&#xF8;de.pdf)
                                            [2022 04 19 Referat ekstraordinært afdelingsmøde.pdf](https://faellesbo.dk/p/Files/Filer/Boligdata/AfdelingsFiler/271/Dagsorden_og_referater/Afdelingsm&#xF8;de/2022-04-19-Referat-ekstraordin&#xE6;rt-afdelingsm&#xF8;de.pdf)

###

                                                Husorden

[Husorden 2019.09.12.pdf](https://faellesbo.dk/p/Files/Filer/Boligdata/AfdelingsFiler/271/Beboerinformation/Husorden/Husorden-2019.09.12.pdf)

###

                                                Informationsskrivelse

[Oversigtskort Afd 271 Lyngskrænten\_Egeskrænte\_Tjørnevej.pdf](https://faellesbo.dk/p/Files/Filer/Boligdata/AfdelingsFiler/271/Beboerinformation/Informationsskrivelse/Oversigtskort-Afd-271-Lyngskr&#xE6;nten_Egeskr&#xE6;nte_Tj&#xF8;rnevej.pdf)

###

                                                Råderet

[Råderetskatalog 2022.08.16.pdf](https://faellesbo.dk/p/Files/Filer/Boligdata/AfdelingsFiler/271/Beboerinformation/R&#xE5;deret/R&#xE5;deretskatalog-2022.08.16.pdf)

###

                                                Vedligeholdelse

[Vedligeholdelsesreglement.pdf](https://faellesbo.dk/p/Files/Filer/Boligdata/AfdelingsFiler/271/Beboerinformation/Vedligeholdelse/Vedligeholdelsesreglement.pdf)

###

                                                Energimærkning

[Energimærkning afd. 271.pdf](https://faellesbo.dk/p/Files/Filer/Boligdata/AfdelingsFiler/271/Beboerinformation/Energim&#xE6;rkning/Energim&#xE6;rkning-afd.-271.pdf)
                                            [Energimærkning afd. 271 - Tjørnevej.pdf](https://faellesbo.dk/p/Files/Filer/Boligdata/AfdelingsFiler/271/Beboerinformation/Energim&#xE6;rkning/Energim&#xE6;rkning-afd.-271---Tj&#xF8;rnevej.pdf)

###

                                                Almen Styringsdialog

[Almen styringsdialog for afdelingen 2025.pdf](https://faellesbo.dk/p/Files/Filer/Boligdata/AfdelingsFiler/271/Beboerinformation/Almen%20Styringsdialog/Almen-styringsdialog-for-afdelingen-2025.pdf)
                                            [Almen styringsdialog for afdelingen 2024.pdf](https://faellesbo.dk/p/Files/Filer/Boligdata/AfdelingsFiler/271/Beboerinformation/Almen%20Styringsdialog/Almen-styringsdialog-for-afdelingen-2024.pdf)

###

                                                Vedtægter

[FællesBo vedtægter godkendt den 2 juni 2022.pdf](https://faellesbo.dk/p/Files/Filer/Boligdata/Organisation/00/Vedt&#xE6;gter/F&#xE6;llesBo-vedt&#xE6;gter-godkendt-den-2-juni-2022.pdf)

###

                                                Økonomi

[Regnskab-2024.pdf](https://faellesbo.dk/p/Files/Filer/Boligdata/AfdelingsFiler/271/&#xD8;konomi/Regnskab-2024.pdf)
                                            [Regnskab 2023.pdf](https://faellesbo.dk/p/Files/Filer/Boligdata/AfdelingsFiler/271/&#xD8;konomi/Regnskab-2023.pdf)
                                            [Regnskab 2022.pdf](https://faellesbo.dk/p/Files/Filer/Boligdata/AfdelingsFiler/271/&#xD8;konomi/Regnskab-2022.pdf)
                                            [Budget 2026.pdf](https://faellesbo.dk/p/Files/Filer/Boligdata/AfdelingsFiler/271/&#xD8;konomi/Budget-2026.pdf)
                                            [Budget 2025.pdf](https://faellesbo.dk/p/Files/Filer/Boligdata/AfdelingsFiler/271/&#xD8;konomi/Budget-2025.pdf)
                                            [Budget 2024.pdf](https://faellesbo.dk/p/Files/Filer/Boligdata/AfdelingsFiler/271/&#xD8;konomi/Budget-2024.pdf)

## Placering

## Ejendomsfunktionærerne i afdelingen

### Hovednummeret til Område Nord

61243030

## Ejendomsfunktionærerne i afdelingen

### Allan Hoffmann

61243036

nord@faellesbo.dk

### Frede Kirkeby

61243031

nord@faellesbo.dk

### Henrik Stærk

61243034

nord@faellesbo.dk

### Kurt Knudsen

61243037

nord@faellesbo.dk

### Lasse Sørensen

61243032

nord@faellesbo.dk

### Mads Danielsen

61243038

nord@faellesbo.dk

### Martin Sig Christensen

61243035

nord@faellesbo.dk

### Tommy Sand Schultz

61243033

nord@faellesbo.dk

## Afdelingsbestyrelsesmedlemmer

Navn

Titel

Elsebeth Nielsen

Formand

Karl Vesterlund

Bestyrelsesmedlem

Johnny Poul Mejnertz

Bestyrelsesmedlem

Majbrit  Westergaard

Suppleant

Jane  Svinth

Suppleant
